Overview
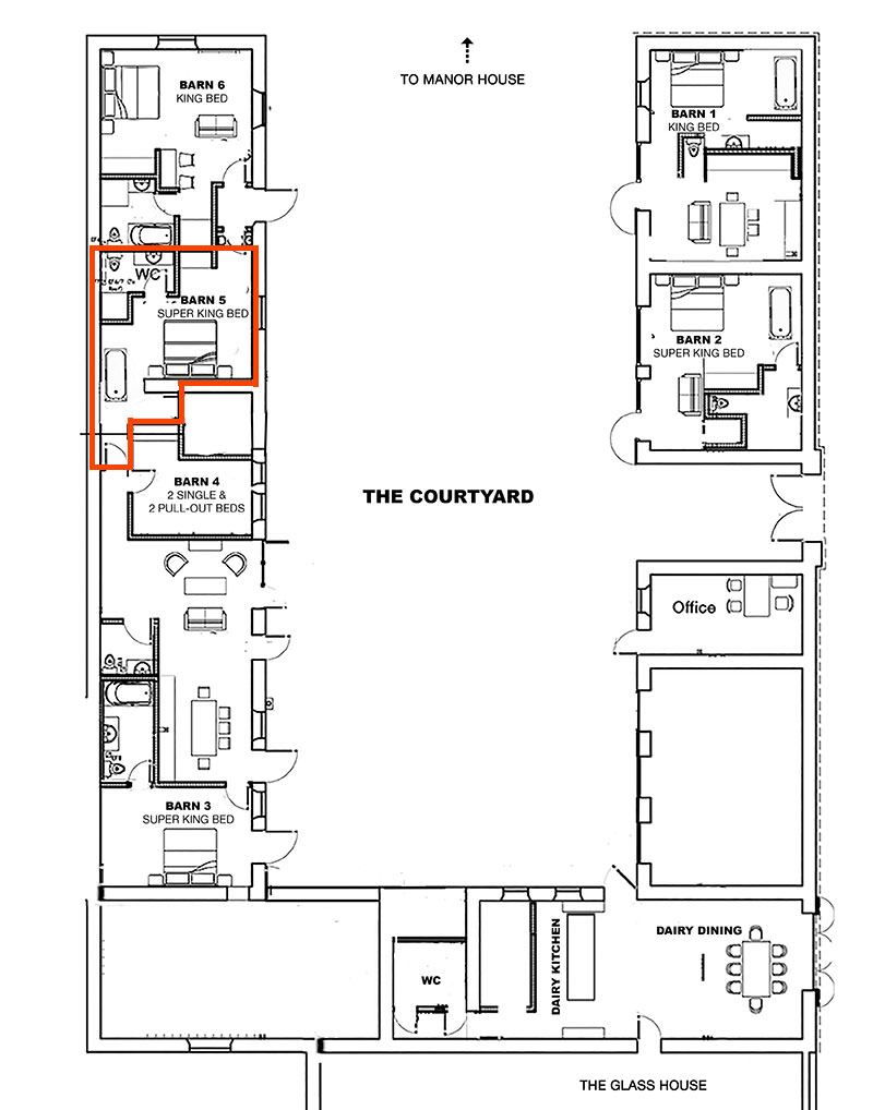
Barn room five is a large suite that has a large two person tub sitting majestically under the old arches of the barn. The bathroom has a wet room style shower.
There is a super king size bed.
SLEEPS 2 - 4
FEATURES
- Large suite
- Two person bath tub
- Super king size bed
- Wet room style shower
