Overview
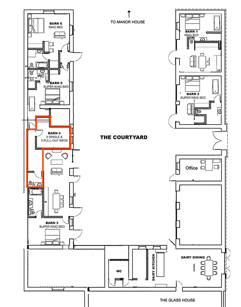
Barn room 4 forms part of the main barn kitchen and living areas. This area contains the bath and shower and is normally combined with either barn room 3 or 5 to form a large 2, 3 or 4 bedroom cottage.
There is also the option to have additional young adult sleepers in this room as both beds have pullout beds beneath them.
SLEEPS 2 - 4
FEATURES
- Twin
- Pullout beds
- Can be combined with Barn Rooms 3 or 5
